Grant Funding was secured & work has been completed to extend the runway on the North End of the Airport.
Tender was awarded to Mike Johnson Excavating.
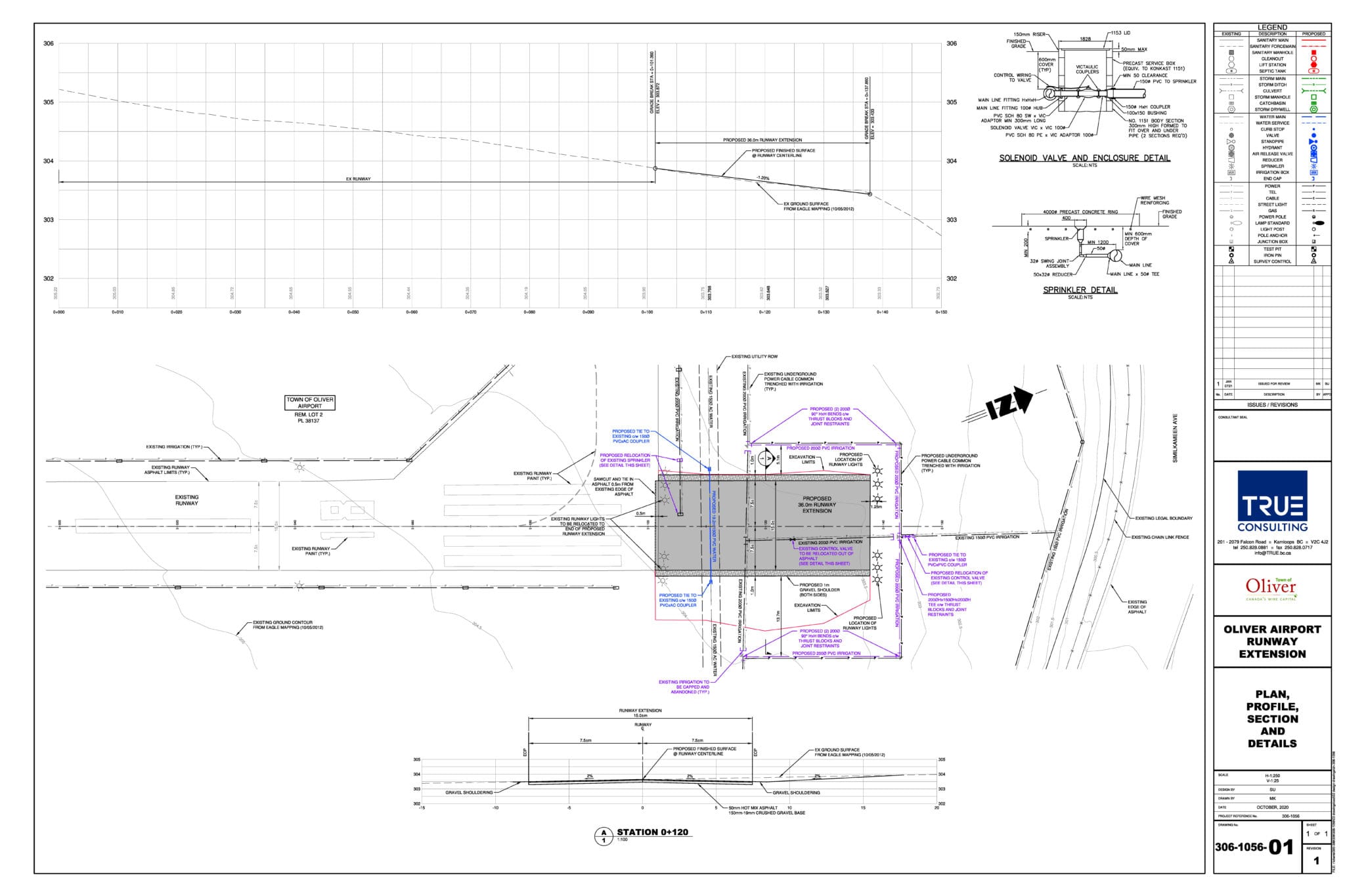
Design Overview
- Relocate existing infrastructure (runway lighting, irrigation sprinklers & control valve) in preparation for runway extension.
- Install 20m of 150Ø DR18 C900 PVC encased potable watermain, complete with interconnection to existing system.
- Install 80m realignment of 200Ø Series 160 gasketed PVC irrigation watermain, complete with interconnection to existing system.
- Realign, abandon, connect and commission all electrical components to make adjusted infrastructure operational.
- 560m² of 75mm thick asphalt runway.







